Официальный сайт
Завода
Завода
Без выходных
с 9:00 до 22:00
с 9:00 до 22:00
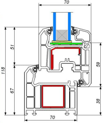
Профиль VEKA Softline 70 — купить окна с установкой
Купить пластиковые окна от производителя
Окна Века Софтлайн 70 Премиум
Двухстворчатое окно, размеры 1100 х 1250 мм
Цена без учета стоимости монтажа!
Серия: Премиум
Основные характеристики профиля VEKA Softline 70
- Монтажная глубина: 70 мм — повышенная теплоизоляция и устойчивость к перепадам температур
- Количество камер: 5 камер — эффективное удержание тепла и звука
- Толщина наружной стенки: 3,0 – 3,1 мм — прочность и долговечность
- Армирование: стальное усиление 1,5 – 3,0 мм — высокая жесткость конструкции
- Тип стеклопакета: однокамерный или двухкамерный (до 40 мм) — возможность энергосбережения
- Теплосопротивление профиля: до 0,90 м²·°C/Вт — отличная теплоизоляция
- Звукоизоляция: до 42–44 дБ в зависимости от стеклопакета
- Фурнитура: совместим с Siegenia, Maco, Accado, Fornax и др.
- Класс профиля: высокий энергетический стандарт для жилых помещений
Где применяется
- Для остекления квартир и домов в средней полосе и северных регионах
- Для лоджий, балконов и тёплых помещений
- Подходит для энергоэффективных окон и большого остекления
Преимущества профиля VEKA Softline 70
✔ Повышенная теплоизоляция для экономии на отоплении
✔ Отличная звукоизоляция
✔ Совместим с различными конфигурациями стеклопакетов
✔ Идеален для частных домов и квартир
✔ Устойчивая работа при резких перепадах температуры
Индивидуальный расчёт размеров, стеклопакета и фурнитуры — подберём оптимальную комплектацию под ваш проект с учётом бюджета и задач.